Skip to content

Venezia – San Samuele | Attico con terrazza privata

4 pezzi
1 camere da letto
1 Bagno con doccia
550.000 €
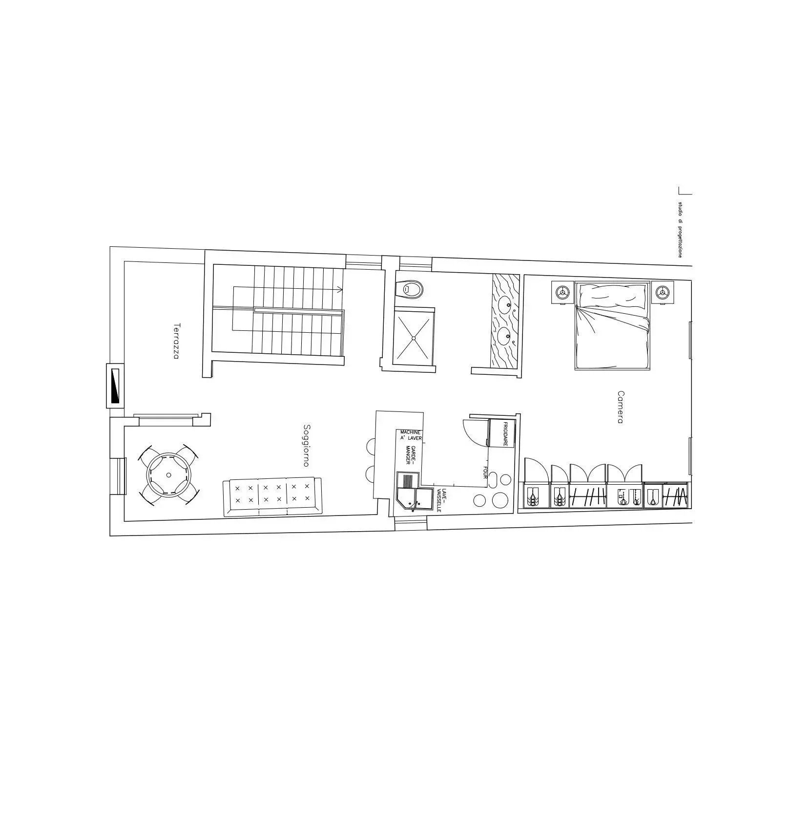
Nel cuore autentico di San Samuele, a pochi passi dal Canal Grande, questo attico ristrutturato con terrazza privata rappresenta una delle rarità più ricercate del mercato veneziano.

L’appartamento occupa il terzo e ultimo piano di una palazzina di sole tre unità abitative, garantendo un contesto riservato e silenzioso, particolarmente apprezzato nel centro storico. L’accesso avviene tramite scale comode e regolari, elemento non scontato a Venezia, che rende la salita agevole e ben proporzionata.

Gli interni si distinguono per un’atmosfera luminosa e accogliente, dove comfort contemporaneo e carattere veneziano convivono in perfetto equilibrio.
La zona giorno, con cucina a vista elegantemente integrata, dialoga naturalmente con l’esterno, creando una continuità armoniosa tra spazi interni ed esterni.

La terrazza privata, vero elemento distintivo della proprietà, offre uno spazio intimo e vivibile: un luogo raro a Venezia, ideale per colazioni all’aperto, momenti di relax o cene riservate sopra i tetti della città.

La camera da letto padronale è ampia e silenziosa, pensata come uno spazio privato e raccolto. Il bagno, moderno e ben progettato, completa l’unità con materiali sobri e funzionali.

Completa la proprietà una soffitta di servizio, comoda e facilmente accessibile, ideale come spazio di deposito per valigie o effetti personali, un plus pratico e prezioso nel contesto veneziano.

Completamente ristrutturato con gusto, l’appartamento è pronto da vivere e si presta perfettamente come pied-à-terre di alto livello o residenza privata nel centro storico più elegante e residenziale della città.

È inoltre possibile valutare l’acquisizione del livello adiacente, attualmente oggetto di proposta separata.
Maggiori informazioni

Informazioni sulla tua proprietà

Riferimento agenzia
85897519
Zona/Quartiere
San Marco none
Tipo di immobile
Appartamento
Superficie
66 m²
Anno di costruzione
1800
Zone soggette a regolamentazione degli affitti
Si
Prezzo
550.000 €
Spese
10 €
Camere
4 pezzi
Camere da letto
1 camere da letto
Bagno con doccia
1 doccia/bagni
Livelli
livelli 1
Piano
Ascensore
No

Appartamento Venezia - 66 M²

AppartamentoVenezia - 66 M²
550.000 €

Judith Marine

BOULBAIN

Scopra l'agenzia
Questo campo è obbligatorio
Questo campo è obbligatorio
Questo campo è obbligatorio
Questo campo è obbligatorio
Questo campo è obbligatorio

Barnes España

Altre proprietà nella zona

Le mie proprietà visualizzate di recente

Sei interessato a una proprietà di prestigio?

Ricevi le ultime novità sul mercato immobiliare di lusso e sui nostri eventi.