Skip to content

Venezia, Giudecca:Prestigiosa Residenza Panoramica

13 pezzi
4 camere da letto
5 bagni
2.900.000 €
La proprietà gode di una posizione fronte Canale della Giudecca, con affacci aperti sulla laguna, sul bacino di San Marco e sulla Chiesa del Redentore.

Servito da ascensore privato con accesso diretto al piano, l’insieme si compone di due unità affiancate, entrambe sviluppate su più livelli, offrendo una metratura importante e una grande flessibilità distributiva.

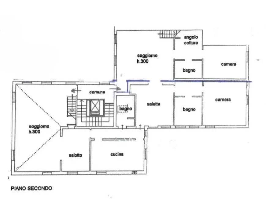
Il soggiorno principale si affaccia direttamente sul canale, con una vista ampia e continua sull’acqua. Gli altri ambienti godono di affacci aperti verso il Redentore e i tetti veneziani, con esposizione su quattro lati e una luminosità costante durante tutta la giornata.

La distribuzione attuale comprende diversi spazi di rappresentanza, sala da pranzo e cucina, per un totale di quattro camere e cinque bagni.

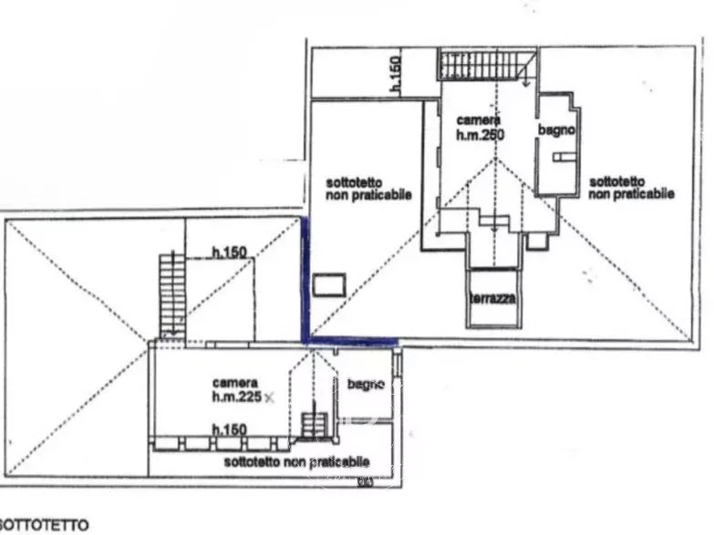
Al piano superiore, ciascuna unità dispone della propria zona mansardata abitabile, collegata internamente, con ambienti aggiuntivi e bagno. Questi spazi possono essere utilizzati come camere, studi o zone ospiti.

Una delle mansarde dà accesso all’altana panoramica, mentre l’altra si apre su un terrazzino abitabile.

La configurazione consente un utilizzo come residenza principale oppure come due unità indipendenti, con possibilità di ulteriore riorganizzazione.

Una proprietà rara per posizione, affacci e distribuzione.
Maggiori informazioni

Informazioni sulla tua proprietà

Riferimento agenzia
86413657
Zona/Quartiere
Giudecca none
Tipo di immobile
Appartamento
Superficie
330 m²
Anno di costruzione
1700
Zone soggette a regolamentazione degli affitti
Si
Prezzo
2.900.000 €
Spese
100 €
Camere
13 pezzi
Camere da letto
4 camere da letto
Bagno con doccia
5 doccia/bagni
Livelli
livelli 2
Piano
Ascensore
Si

Appartamento Venezia - 330 M²

AppartamentoVenezia - 330 M²
2.900.000 €

Judith Marine

BOULBAIN

Scopra l'agenzia
Questo campo è obbligatorio
Questo campo è obbligatorio
Questo campo è obbligatorio
Questo campo è obbligatorio
Questo campo è obbligatorio

Barnes España

Altre proprietà nella zona

Le mie proprietà visualizzate di recente

Sei interessato a una proprietà di prestigio?

Ricevi le ultime novità sul mercato immobiliare di lusso e sui nostri eventi.